Developers & Investors: Unmissable Grosvenor Hotel Project!
Reed Residential is thrilled to present an incredible opportunity for developers or investors seeking their next project!
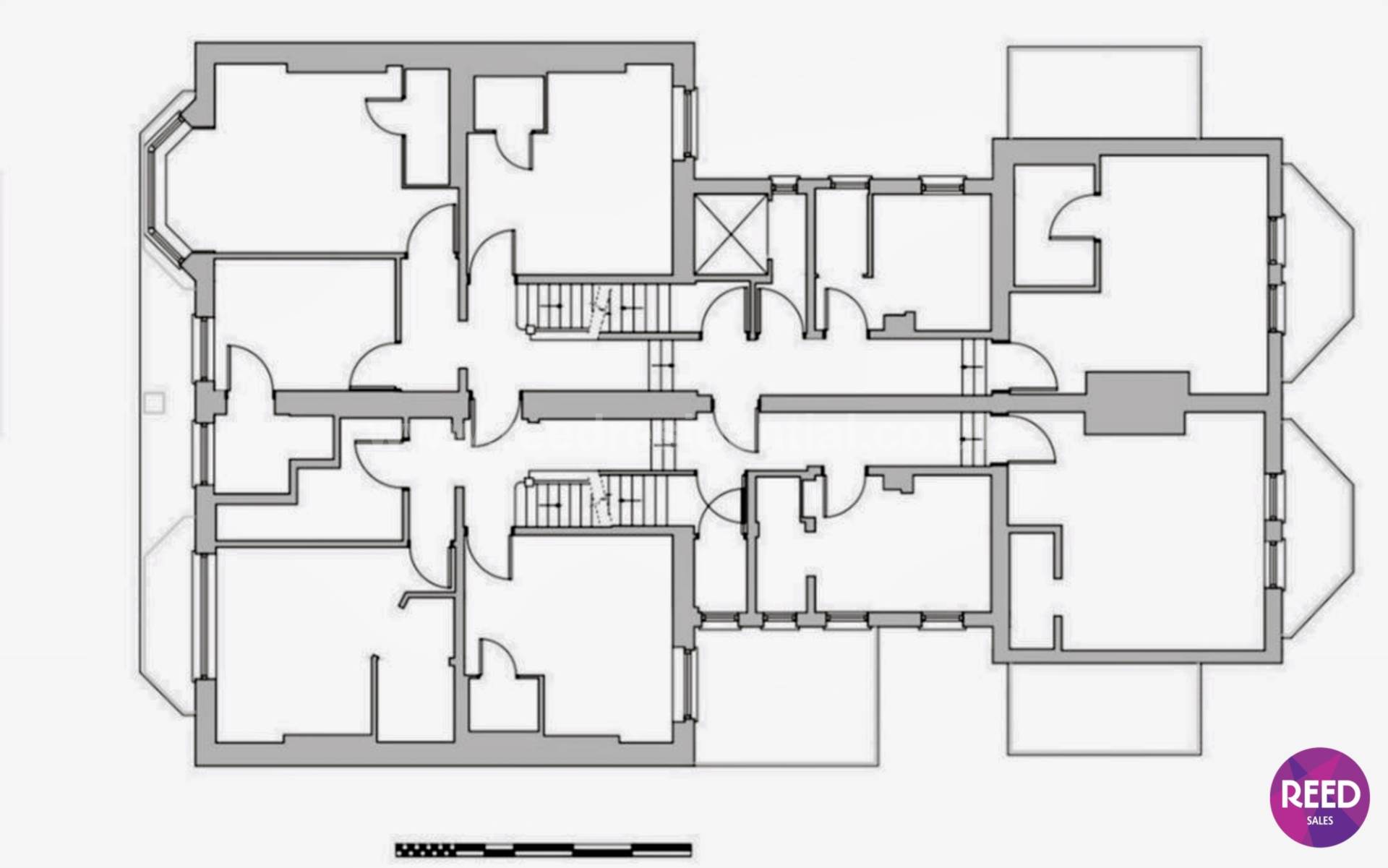
The Grosvenor Hotel is a remarkable 17-bedroom, 18-bathroom semi-detached property boasting an exceptional location. This unique offering sits just a stone’s throw from both Westcliff Train Station and the stunning Seafront, making it prime real estate.
Exciting Potential:
The property boasts approved plans for the conversion into 7 spacious flats (subject to planning permission). This presents a fantastic opportunity to create a highly desirable development in a sought-after location.
Ideal for Developers & Investors:
Whether you’re a seasoned developer or a savvy investor, The Grosvenor Hotel offers exceptional potential to create a profitable and in-demand development.
Don’t Miss Out!
This is an opportunity not to be missed! Contact Reed Residential today to arrange a viewing and unlock the potential of The Grosvenor Hotel.
Notice
Please note we have not tested any apparatus, fixtures, fittings, or services. Interested parties must undertake their own investigation into the working order of these items. All measurements are approximate and photographs provided for guidance only.

We use cookies to enhance your browsing experience, serve personalised content and ads, and analyse our traffic. By clicking “Accept All Cookies”, you agree to the storing of cookies on your device to improve site navigation, analyse usage, and assist in our marketing efforts.