Council tax band: TBC
*** Unique offering to acquire a commercial freehold site in a prime location at the heart of Peckham ***
Planning permission has been granted for a 4-storey new build, comprising a spacious 5 bedroom residential unit with garden, perfect for modern living or Airbnb.
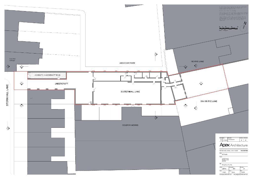
33 Sternhall Lane is approximately 635 sqm in size. It includes a shared right of way through an undercroft that is owned by the vendor.
Situated on a bustling mixed residential and commercial road in an exceptional trendy location, the site benefits from excellent transport links to the City with just a 5 minute walk to mainline station Peckham Rye and is within easy reach of the diverse array of shops, restaurants, pubs and amenities that make Rye Lane so popular.
This is a fantastic opportunity to invest in an exciting project, with potential to add further development – subject to planning.
Located on a mixed residential and commercial Road, situated in the heart of Peckham within easy reach of Peckham Rye station and shops and amenities on Rye Lane.

We use cookies to enhance your browsing experience, serve personalised content and ads, and analyse our traffic. By clicking “Accept All Cookies”, you agree to the storing of cookies on your device to improve site navigation, analyse usage, and assist in our marketing efforts.