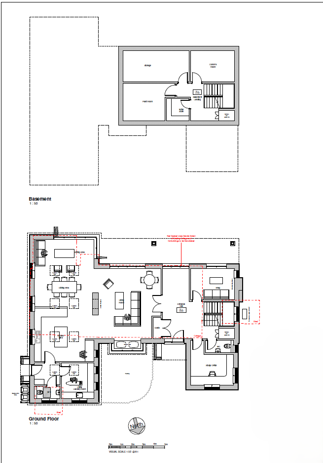
Planning permission granted ref: DM/232282 for a detached four bedroom, three storey dwelling house (plus a basement) together with a detached two storey garage. (Garage below ground level) with home office over. Landscaping, pool and greenhouse.OutsideDirections: Continue to the very end of Church Lane, Ardingly on to the uneven road, the entrance is on the leftSituationSet in a stunning and hugely popular location between Ardingly and Lindfield and 3.9 miles from Haywards Heath Station. Ardingly has a village shop and an excellent bakery and Lindfield, in addition to excellent small shops also offers an extensive range of local facilities including a chemist, church, public houses, health centre and a supermarket. A wider range of facilities including a mainline station with fast and regular services to London (Victoria/London Bridge accessible within 45 mins) can be found in Haywards Heath. The M23 is just 8 miles away with access to the M25 and the rest of the motorway network, and airports at Gatwick and Heathrow.
Property Ref Number:
HAM-61433Additional InformationAgents Note: There are restrictive covenants on the land, please contact Hamptons for details.

We use cookies to enhance your browsing experience, serve personalised content and ads, and analyse our traffic. By clicking “Accept All Cookies”, you agree to the storing of cookies on your device to improve site navigation, analyse usage, and assist in our marketing efforts.